Aspen - Chalet

Impressive Kontio Aspen is a split level house. The high and sunny living room with the shaped window gables crowns the Kontio Aspen model.

Aspen B

Aspen - Chalet

Aspen - Chalet Aspen A and Aspen B -models, 3 floors log house

Gross Living Area

158 m2

Total Area

190 – 197 m2

Impressive Kontio Aspen is a split level house. The high and sunny living room with the shaped window gables crowns the Kontio Aspen model.

The efficient layout scheme makes Kontio Aspen suitable for even a large group of people.

In the A model, the main entrance is located on the upper hillside where there is also a cold store for outdoor equipment. In the B model, the main entrance is on the lower hillside, in the basement. In both variations, the basement includes a sauna department, bedrooms and warm storage space. The lounge area, the kitchen and more bedrooms are located on the first floor. A loft offers additional space

Aspen - Chalet-variations

Floor
2
1
0

Aspen A

Aspen A, 3 floor(s)

Gross Living Area
158 m2
Total Area
197 m2
Number of Bedrooms
3 pcs
Floor
2
1
0

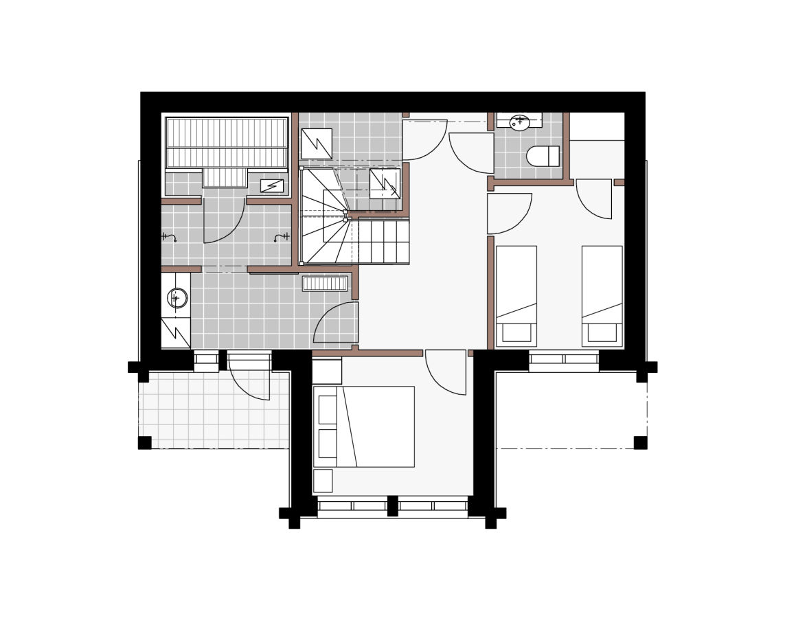
Aspen B

Aspen B, 3 floor(s)

Gross Living Area
158 m2
Total Area
190 m2
Number of Bedrooms
3 pcs

You may also like

Log House, 2 floors

Gross Living Area

125 – 158 m2

Total Area

199 – 234 m2

Gross Living Area

159.5 m2

Total Area

198 – 223 m2

Contact

Saved favourites

model models