Apertus - Log House

The Kontio Apertus collection is a modern interpretation of the classic Central European building style. The steep ridged roof and unique architectural details will inspire you for years to come.

Apertus - Log House

Apertus - Log House Apertus EOS 115, Apertus Leo 118 and Apertus Vis 161 -models, 2 floors log house

Gross Living Area

126 – 171 m2

Total Area

150 – 203 m2

The Kontio Apertus collection is a modern interpretation of the classic Central European building style. The steep ridged roof and unique architectural details will inspire you for years to come.

Apertus - Log House-variations

Floor
2
1

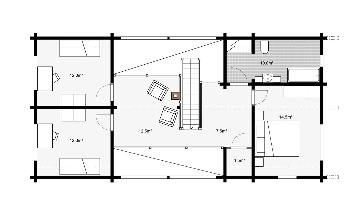
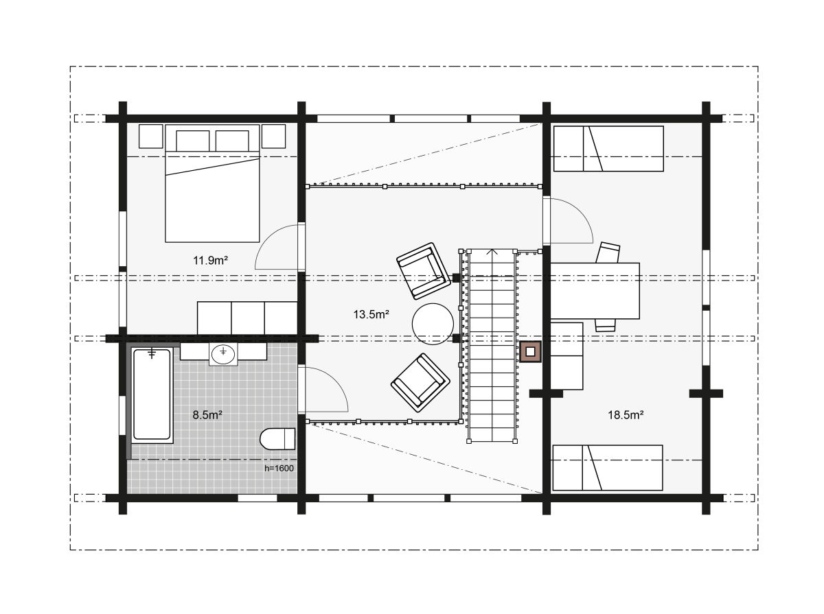
Apertus EOS 115

Apertus EOS 115, 2 floor(s)

Gross Living Area
155 m2
Total Area
178 m2
Number of Bedrooms
3 pcs
Floor
2
1

Apertus Leo 118

Apertus Leo 118, 2 floor(s)

Gross Living Area
126 m2
Total Area
150 m2
Number of Bedrooms
3 pcs
Floor
2
1

Apertus Vis 161

Apertus Vis 161, 2 floor(s)

Gross Living Area
171 m2
Total Area
203 m2
Number of Bedrooms
5 pcs

You may also like

Gross Living Area

0 m2

Total Area

0 m2

Log House, 2 floors

Gross Living Area

175.5 – 198 m2

Total Area

205 – 285 m2

Contact

Saved favourites

model models