Vehmas 123

Astu sisään ja koe elämys. Vihersyvennys avaa uuden näkymän hirsitaloarkkitehtuuriin!

Vehmas 123

Vehmas 123 A, A autokatoksella ja A pihasaunalla ja autokatoksella -mallit, 1 kerros omakotitalo

Kerrosala

123,5 – 152 m2

Huoneistoala

111,5 – 134,5 m2

Astu sisään ja koe elämys. Vihersyvennys avaa uuden näkymän hirsitaloarkkitehtuuriin!

Kontio Vehmas -malliston idea lähti tiiviistä kaupunkitonteista ja haasteista saada taloon paljon valoa, yksityisyyttä ja hyvinvointia lisääviä vihernäkymiä. Vihersyvennys vastaa näihin tarpeisiin sekä nostaa koko talon tunnelman ja arkkitehtuurin täysin uudelle tasolle. Syvennyksen istutukset ja vaikkapa veistokset elävät vuodenaikojen ja vuorokauden vaihteluiden mukana tuoden luonnon lähelle arkea urbaanillakin alueella. Mallit on suunniteltu niin, että myös väljemmällä tontilla ja luonnon äärellä on mahdollisuus ikkuna-aukotuksia muuntelemalla luoda näkymiä kauniiseen ympäristöön.

Vehmas 123-variaatiot

Vehmas 123A, Perusversio ilman autokatosta ja pihasaunaa. Tuotekehityksemme on jatkuvaa, joten esitetyt huoneiden pinta-alat voivat poiketa kuvissa esitetyistä mm. tuotekehitysmuutosten johdosta.

Vehmas 123A, 1 krs.

Kerrosala
123,5 m2
Huoneistoala
111,5 m2
Makuuhuoneiden määrä
3 kpl.

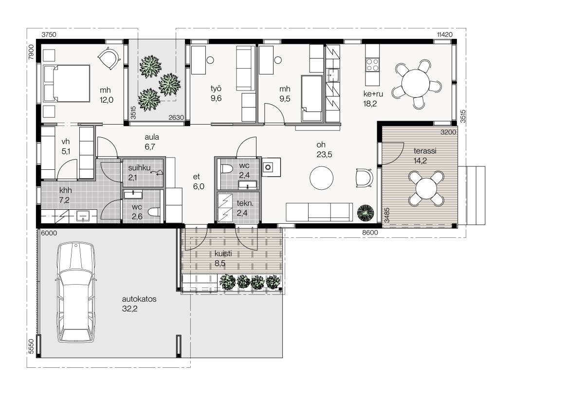
Vehmas 123A autokatoksella Tuotekehityksemme on jatkuvaa, joten esitetyt huoneiden pinta-alat voivat poiketa kuvissa esitetyistä mm. tuotekehitysmuutosten johdosta.

Vehmas 123A autokatoksella, 1 krs.

Kerrosala
123,5 m2
Huoneistoala
111,5 m2
Makuuhuoneiden määrä
3 kpl.

Vehmas 123A pihasaunalla ja autokatoksella Tuotekehityksemme on jatkuvaa, joten esitetyt huoneiden pinta-alat voivat poiketa kuvissa esitetyistä mm. tuotekehitysmuutosten johdosta.

Vehmas 123A pihasaunalla ja autokatoksella, 1 krs.

Kerrosala
152 m2
Huoneistoala
134,5 m2
Makuuhuoneiden määrä
3 kpl.

Katso myös nämä

Omakotitalo, 1 kerros

Kerrosala

148,5 m2

Huoneistoala

133,5 m2

Omakotitalo, 1 kerros

Kerrosala

126 m2

Huoneistoala

115 m2

Tallennetut suosikit

malli mallia