Stenudden (Kalliosaari) - Bastu

Villakollektionen Stenudden har redan blivit en klassiker och nu kompletteras den med kompatibla bastumodeller.

Stenudden (Kalliosaari) - Bastu

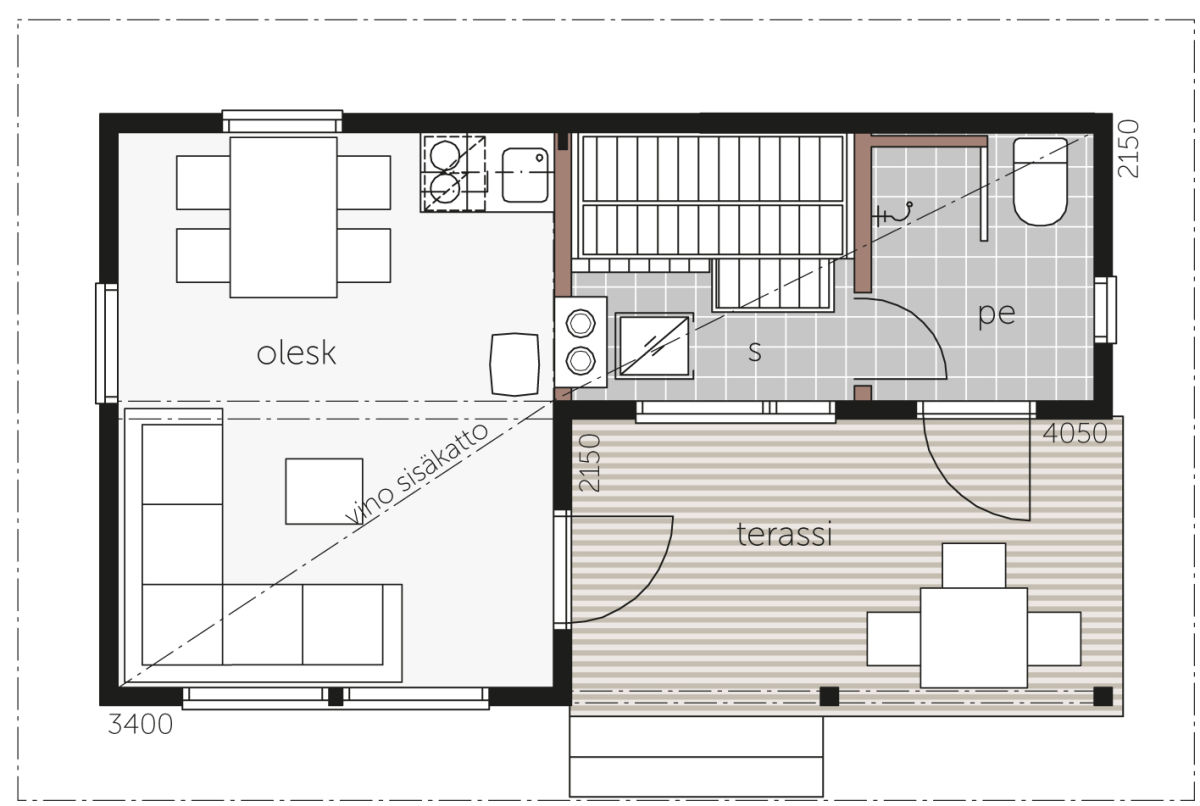
Stenudden (Kalliosaari) - Bastu Stenudden 20A, Stenudden 25A, Stenudden 25B, Stenudden 30A, Stenudden 30B och Stenudden 30C -modeller, 1 våning gäststuga och garage

Våningsyta

20 – 30 m2

Total yta

26 – 43.5 m2

Villakollektionen Stenudden har redan blivit en klassiker och nu kompletteras den med kompatibla bastumodeller.

Det svagt sluttande taket och de stora vardagsrumsfönstren skapar en otvunget modern stil. Stilen blir mer romantisk med fönstergitter och rätt färgval.

Stenudden (Kalliosaari) - Bastu-variationer

Stenudden 20A

Stenudden 20A, 1 plan

Våningsyta
20 m2
Total yta
26 m2
Antal sovrum
0 st.

Stenudden 25A

Stenudden 25A, 1 plan

Våningsyta
25 m2
Total yta
34 m2
Antal sovrum
0 st.

Stenudden 25B

Stenudden 25B, 1 plan

Våningsyta
25 m2
Total yta
34 m2
Antal sovrum
0 st.

Stenudden 30A

Stenudden 30A, 1 plan

Våningsyta
30 m2
Total yta
43.5 m2
Antal sovrum
0 st.

Stenudden 30B

Stenudden 30B, 1 plan

Våningsyta
30 m2
Total yta
40.5 m2
Antal sovrum
0 st.

Stenudden 30C

Stenudden 30C, 1 plan

Våningsyta
30 m2
Total yta
40.5 m2
Antal sovrum
0 st.

Kolla även de här

Gäststuga och garage, 1 våning

Våningsyta

20 – 30 m2

Total yta

26 – 43 m2

Gäststuga och garage, 1 våning

Våningsyta

30 m2

Total yta

44 m2

Ta kontakt

Sparade favoriter

modell modeller