Högsåra - Bastu

Högsåra-bastu-modellerna erbjuder en tidlöst stilig bastu-upplevelse och samtidigt ett trevligt gästrum för sommargästerna.

Högsåra - Bastu

Högsåra - Bastu Högsåra 20, Högsåra 25 och Högsåra 30 -modeller, 0 plan gäststuga och garage

Våningsyta

0 m2

Total yta

0 m2

Högsåra-bastu-modellerna erbjuder en tidlöst stilig bastu-upplevelse och samtidigt ett trevligt gästrum för sommargästerna.

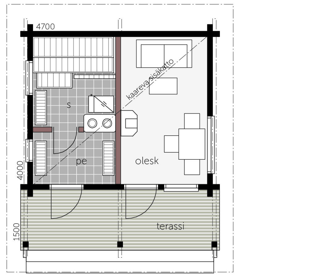
Denna bastumodell är också ett utmärkt tillskott till en gård där huvudbyggnaden representerar en annan arkitektonisk stil. Kom ihåg att alla planlösningar fungerar bra i alla storleksklasser av Högsåra-bastu-modellen. Du får bastun med den planlösning du önskar och strandbastuplatsens hela byggrätt blir utnyttjad.

Högsåra - Bastu-variationer

Högsåra 20

Högsåra 20, 1 plan

Våningsyta
20
Total yta
28
Antal sovrum
0

Högsåra 25

Högsåra 25, 1 plan

Våningsyta
25
Total yta
35
Antal sovrum
0

Högsåra 30

Högsåra 30, 1 plan

Våningsyta
29.5
Total yta
41
Antal sovrum
0
Ta kontakt

Sparade favoriter

modell modeller

Äänestä paras Sauna ja piha -lehden kansi ja voita
100 euron arvoinen elämyslahjakortti!

Äänestämään