Kontio Högsåra huvila Turkissa
Kahden tunnin ajomatkan päässä Istanbulista löytyy taianomainen paikka, jossa vesi pulppuaa lähteistä, koskematonta metsää on kaikkialla ympärillä ja koko komeutta kehystävät ympäröivät vuoret. Vedat Bayrak rakensi perheelleen unelmien lomapaikan näihin kauniisiin maisemiin.
Kontion Turkin jälleenmyyjä Alper Nemli toi esille hirsirakentamisen ekologisia näkökulmia ja oman toimistonsa huipputasoisen arkkitehtuuri- ja sisustusosaamisen, jolloin Vedatin oli helppo valita Kontio kumppanikseen. Päätös varmistui Suomen-vierailulla ”Välittömästi vierailtuani Kontion pääkonttorilla ja tehtaalla Pudasjärvellä tein päätöksen tehdä nimenomaan Kontion hirsihuvilan. Näin kaikki hirsien valmistuksen työvaiheet, sen huippuosaamisen ja korkean teknologian tuotannon takana. Ennen kaikkea koko tiimin, joka saa kaiken toimimaan saumattomasti suunnittelusta tuotantoon”.
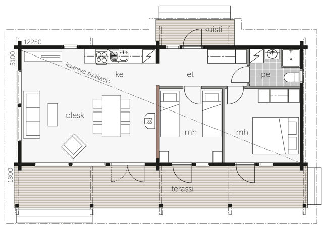
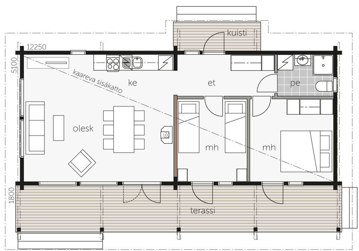
Rinnetontille suunniteltiin päärakennus ja vierasmaja, jotka pohjautuvat Kontio Högsåra-mallistoon. Paikallinen arkkitehti ja sisustussuunnittelija olivat mukana kokonaisuuden suunnittelussa. Sisustuksessa onkin käytetty useita mittatilauskalusteita, jotka on suunniteltu nimenomaan näihin rakennuksiin. Sisustuksessa korostuu värien harmonia ja persoonalliset yksityiskohdat. Kokonaisuuden selkeänä taustana toimii vaaleansävyiset seinät ja katto sekä puulattia. Sisustuksessa käytetyt puun ja ruskean sävyt luovat rauhallisen tunnelman vapaa-ajan viettoon.
Onnistuneesta projektista tyytyväisenä Vedat miettii jo tulevaisuutta: ”Seuraava unelmamme on tehdä sukumme maille Mustanmeren alueelle toinen vapaa-ajanviettopaikka myöskin Högsåraa mukaillen”.
Puunsävyt tuovat lämpöä vaaleaan sisustukseen.
Pihapiiriin rakennettiin myös samaa tyyliä noudatteleva vierastalo.
