My Villa 77

My Villa 77 on kahden makuuhuoneen muuttovalmis huvila, jonka viihtyisät oleskelutilat upeine näköaloineen takaavat laadukkaan vapaa-ajan viettopaikan. Käytänölliset ratkaisut pohjassa helpottavat arjen askareita ja ympärivuotisen käytön ansiosta malli soveltuu huvilaksi, kakkoskodiksi tai vaikka pienen perheen hirsikodiksi!

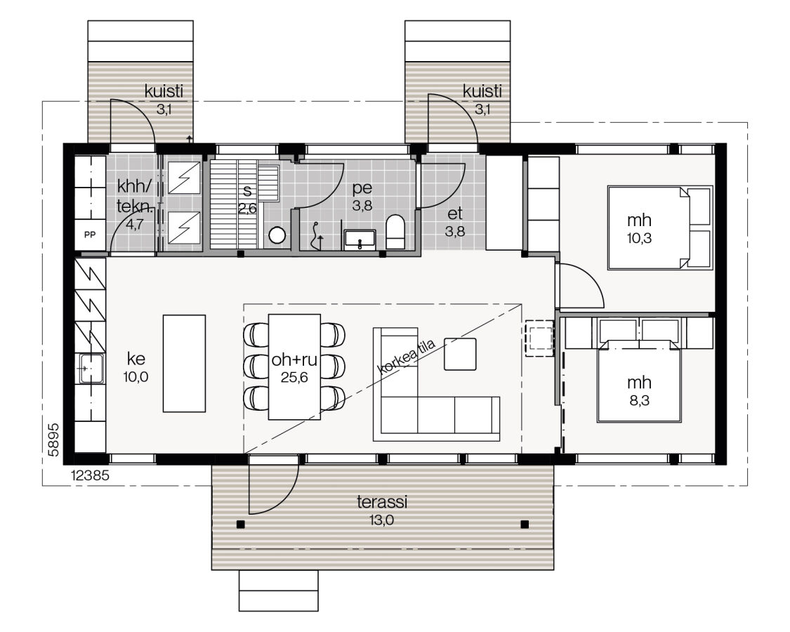
My Villa 77

My Villa 77 ja A -mallit, 1 kerros muu

Kerrosala

77 m2

Kokonaiskäyttöala

69 m2

My Villa 77 on kahden makuuhuoneen muuttovalmis huvila, jonka viihtyisät oleskelutilat upeine näköaloineen takaavat laadukkaan vapaa-ajan viettopaikan. Käytänölliset ratkaisut pohjassa helpottavat arjen askareita ja ympärivuotisen käytön ansiosta malli soveltuu huvilaksi, kakkoskodiksi tai vaikka pienen perheen hirsikodiksi!

My Villa -huvilat toteutetaan talorakenteilla ja toimitetaan muuttovalmiina. Valitse My Villa, kun haluat vaivattomamman ratkaisun vapaa-ajan viettopaikan toteutukseen.

Lue lisää My Villa -mallistosta.

My Villa 77-variaatiot

My Villa 77 A

My Villa 77 A , 1 krs.

Kerrosala
77 m2
Kokonaiskäyttöala
69 m2
Makuuhuoneiden määrä
2 kpl.

Katso myös nämä

Muu, 1 kerros

Kerrosala

74 m2

Kokonaiskäyttöala

66,5 m2

Tallennetut suosikit

malli mallia