My Villa 74

My Villa 74 on kompakti muuttovalmis huvila, joka sopii ympärivuotiseen käyttöön eli mainiosti myös kakkoskodiksi!

My Villa 74

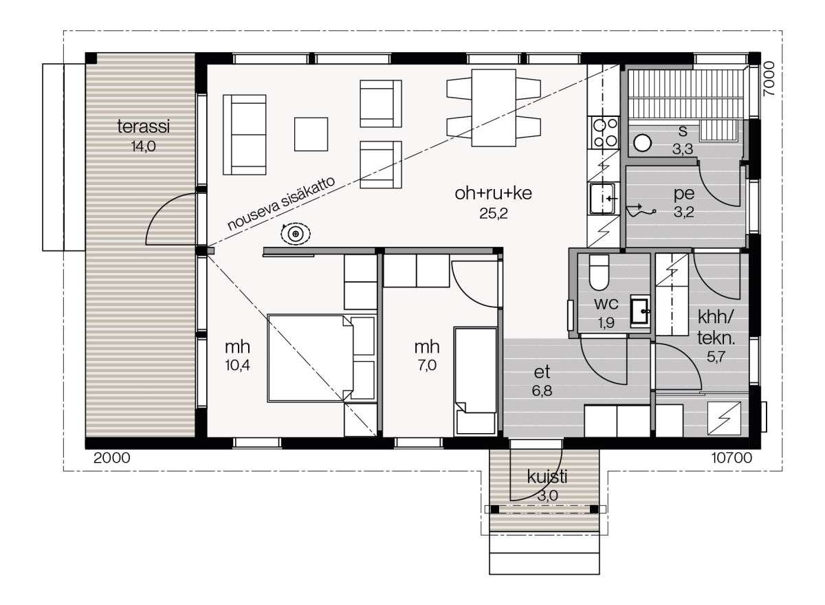
My Villa 74 ja A -mallit, 1 kerros muu

Kerrosala

74 m2

Kokonaiskäyttöala

66,5 m2

My Villa 74 on kompakti muuttovalmis huvila, joka sopii ympärivuotiseen käyttöön eli mainiosti myös kakkoskodiksi!

My Villa -huvilat toteutetaan talorakenteilla ja toimitetaan muuttovalmiina. Valitse My Villa, kun haluat vaivattomamman ratkaisun vapaa-ajan viettopaikan toteutukseen.

Lue lisää My Villa -mallistosta.

My Villa 74-variaatiot

My Villa 74 A

My Villa 74 A, 1 krs.

Kerrosala
74 m2
Kokonaiskäyttöala
66,5 m2
Makuuhuoneiden määrä
2 kpl.

Katso myös nämä

Kerrosala

150 m2

Huoneistoala

137 m2

Muu, 1 kerros

Kerrosala

77 m2

Kokonaiskäyttöala

69 m2

Tallennetut suosikit

malli mallia