Kajo 2

Kauniista ja toimivasta Kontio Kajo 2 -mallista löytyy kaikki tarpeellinen mukavaan vapaa-ajan viettoon.

Kajo 2

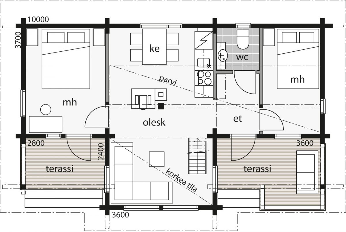
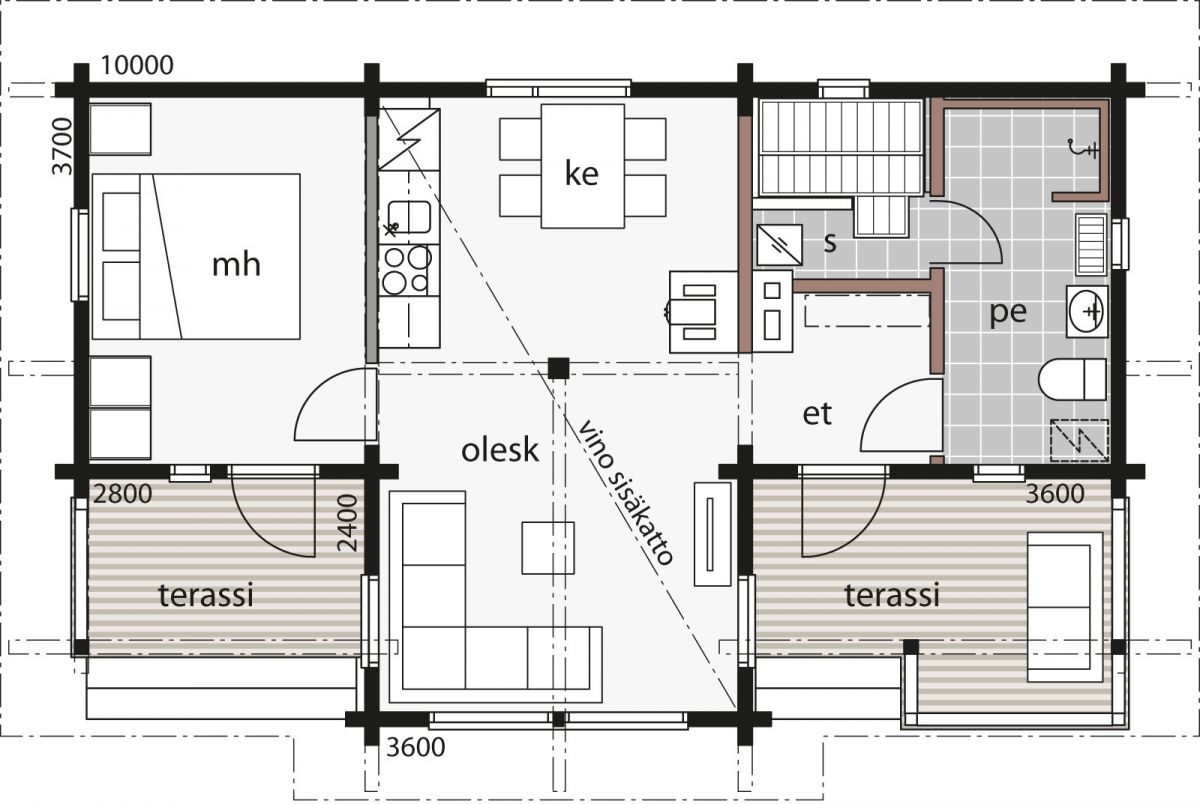
Kajo 2 A ja B -mallit, 1,5 krs. vapaa-ajan asunto

Kerrosala

48 m2

Kokonaiskäyttöala

76,5 m2

Kauniista ja toimivasta Kontio Kajo 2 -mallista löytyy kaikki tarpeellinen mukavaan vapaa-ajan viettoon.

Huvilassa on terassit niin ilta- kuin aamuauringolle. Kokonaisuuden kruunaa korkea ja valoisa oleskelutila. Makuuhuoneiden lukumäärä riippuu pohjavaihtoehdosta.

Kaikki pohjavaihtoehdot on saatavilla sekä yksikerroksisena että parvellisena.

Kajo 2-variaatiot

Kerros

Kajo 2 A, 1. krs.

Kajo 2 A, 1,5 krs.

Kerrosala
48 m2
Kokonaiskäyttöala
76,5 m2
Makuuhuoneiden määrä
1 kpl.
Kerros

Kajo 2 B, 1. krs.

Kajo 2 B, 1,5 krs.

Kerrosala
48 m2
Kokonaiskäyttöala
76,5 m2
Makuuhuoneiden määrä
2 kpl.
Ota yhteyttä

Toimitussisällöt

Huvilat Kontiotoimitus

Huvilat Jättitoimitus

Vapaa-aika

Onko haaveena hirsihuvila tai hirsimökki? Kontiolta löytyy ratkaisu hirsirakentamisen jokaiseen tyyliin.

Koostimme Kontio Vapaa-aika lehteen huvilasuosikit, nykyaikaistetut sekä uutuusmallit. Mukana myös paljon ideoita unelmien hirsihuvilan sisustamiseen.

Tallennetut suosikit

malli mallia

Äänestä paras Sauna ja piha -lehden kansi ja voita
100 euron arvoinen elämyslahjakortti!

Äänestämään