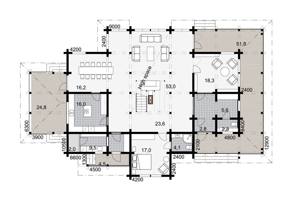
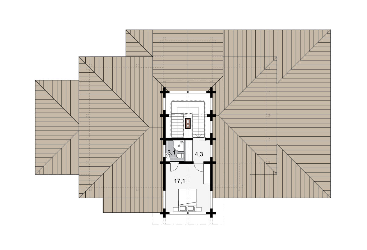
The Impressive Kontio Gloriosa is a prime example of classic, yet luxurious log house living.
Gloriosa - Log House, 3 floors log house
Gross Living Area
405 m2
Total Area
501 m2
The Impressive Kontio Gloriosa is a prime example of classic, yet luxurious log house living.