Delphinium - Wood House

The Kontio Delphinium collection is a showcase for smart building and living solutions.

Delphinium - Wood House

Delphinium - Wood House Delphinium Ago 75, Delphinium Ago 94, Delphinium Leo 104 and Delphinium Leo 92 -models, 1 floor log house

Gross Living Area

84 – 116 m2

Total Area

89 – 141 m2

The Kontio Delphinium collection is a showcase for smart building and living solutions.

The designs combine efficient and practical layouts with large windows, making them suitable for any location. They can be used either as a permanent residence or as a holiday home.

Delphinium - Wood House-variations

Delphinium Ago 75

Delphinium Ago 75, 1 floor(s)

Gross Living Area
84 m2
Total Area
89 m2
Number of Bedrooms
2 pcs

Delphinium Ago 94

Delphinium Ago 94, 1 floor(s)

Gross Living Area
104 m2
Total Area
124 m2
Number of Bedrooms
2 pcs

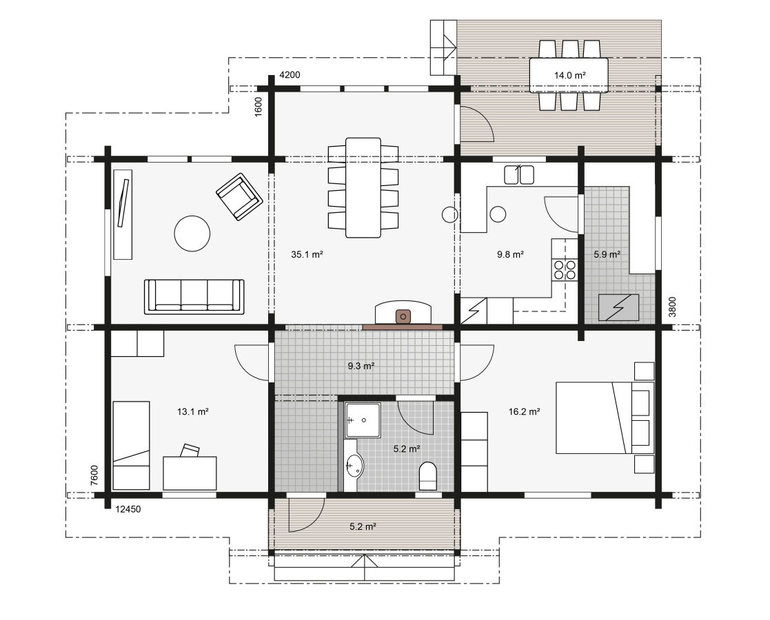
Delphinium Leo 104

Delphinium Leo 104, 1 floor(s)

Gross Living Area
116 m2
Total Area
141 m2
Number of Bedrooms
3 pcs

Delphinium Leo 92

Delphinium Leo 92, 1 floor(s)

Gross Living Area
103 m2
Total Area
124 m2
Number of Bedrooms
3 pcs

You may also like

Log House, 1.5 floors

Gross Living Area

83 – 131 m2

Total Area

124 – 142 m2

Gross Living Area

117 – 142 m2

Total Area

158 – 218 m2

Contact

Saved favourites

model models