Zea - Log House

Kontio Zea is an impressive spa building with large spaces that are made for entertaining.

Zea - Log House

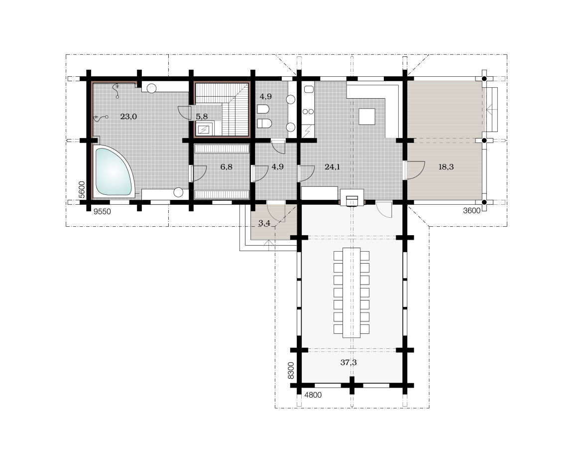
Zea - Log House, 1 floor sauna

Gross Living Area

126 m2

Total Area

150 m2

Kontio Zea is an impressive spa building with large spaces that are made for entertaining.

Zea - Log House-variations

Zea - Log House

Zea - Log House, 1 floor

Gross Living Area
126 m2
Total Area
150 m2
Number of Bedrooms
0 pcs

You may also like

Sauna, 1.5 floors

Gross Living Area

112 m2

Total Area

166 m2

Contact

Saved favourites

model models