Mimosa - Wood House

Spacious and intriguing, Kontio Mimosa is a design you can’t ignore, and it offers lots of possibilities for creative floorplans and interior design.

Mimosa - Wood House

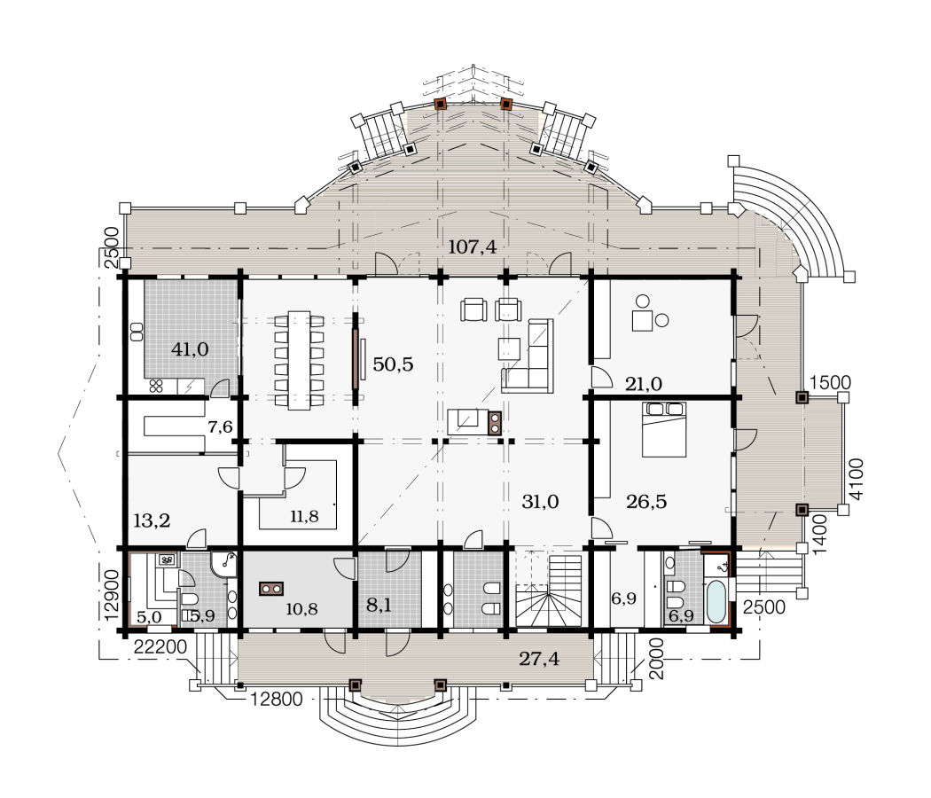
Mimosa - Wood House, 2 floors log house

Gross Living Area

528 m2

Total Area

685 m2

Spacious and intriguing, Kontio Mimosa is a design you can’t ignore, and it offers lots of possibilities for creative floorplans and interior design.

Mimosa - Wood House-variations

Floor
2
1

Mimosa - Wood House

Mimosa - Wood House, 2 floors

Gross Living Area
528 m2
Total Area
685 m2
Number of Bedrooms
6 pcs

You may also like

Gross Living Area

457 m2

Total Area

669 m2

Log House, 2 floors

Gross Living Area

562 m2

Total Area

813 m2

Contact

Saved favourites

model models