Davos - Nordic Ski House

Split-level Kontio Davos offers comfortable living on three floors.

Davos - Nordic Ski House

Davos - Nordic Ski House, 3 floors log house

Gross Living Area

253 m2

Total Area

341 m2

Split-level Kontio Davos offers comfortable living on three floors.

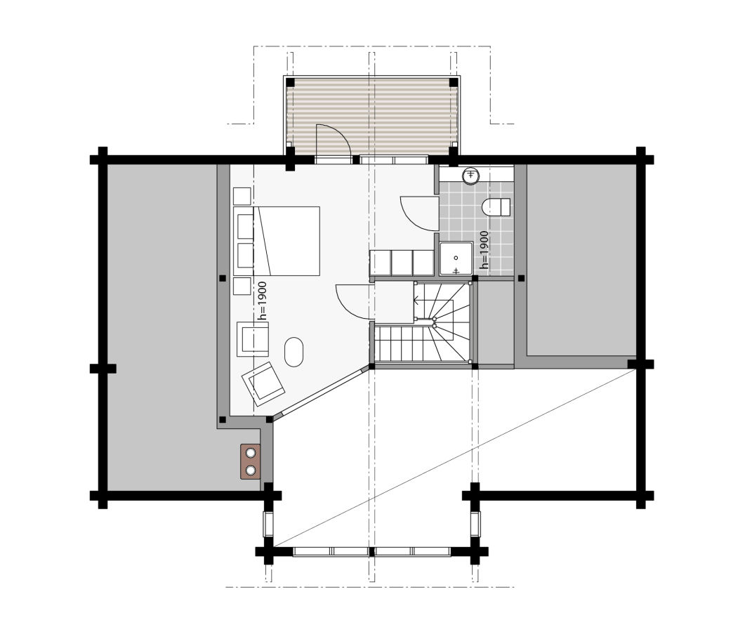
The first floor includes the main entrance and hall, two bedrooms, a spacious kitchen, a high dining room/lounge and a magnificent balcony that is as long as the whole building. On the second floor there is a luxurious main bedroom with a balcony. The basement includes a bedroom, fireplace room and a spacious sauna department with a separate exit. The basement also has plenty of warm storage space and a place for ski service, for instance.

Davos - Nordic Ski House-variations

Floor
2
1
0

Davos - Nordic Ski House

Davos - Nordic Ski House, 3 floors

Gross Living Area
253 m2
Total Area
341 m2
Number of Bedrooms
4 pcs

You may also like

Log House, 2 floors

Gross Living Area

238 m2

Total Area

306 m2

Log House, 2 floors

Gross Living Area

272 m2

Total Area

345 m2

Contact

Saved favourites

model models